• About
  • Blog
  • Case Studies
  • Contact
Bubble Co
  • About
  • Blog
  • Case Studies
  • Contact

QUBE EXECUTIVE SUITE

Viewing the Port from a Different Perspective

The new boardroom with epic views out over the Port of Tauranga to The Mount.

 

INDUSTRY: Stevedoring, Marshalling, Warehousing, IT and total supply chain solutions.

LOCATION: Port of Tauranga, New Zealand

TENANCY SIZE: 260sqm

TEAM SIZE: 14 (on this floor)

 

Qube (then ISO) previously had very functional, cold, industrial offices.

With their sub-tenant vacating from the top floor of this building on the Port of Tauranga, ISO saw an opportunity to create a new “Executive Suite” with better meeting facilities and spaces to attend increasing zoom/teams meetings; and to get more of the executive team together on one floor.

ISO’s previous management offices on the floor below

The tenancy features stunning views overlooking the Port where ISO provide Stevedoring, Marshalling, Warehousing and total supply chain solutions, and the design aesthetic wanted to provide an upmarket but understated backdrop to this.

Bubble Interiors were initially approached just to price preparing drawings for the new fit-out. But in asking our normal scoping questions it became apparent that the business needed to take a few steps back first, to clarify their brief + objectives, and for everyone to understand what was really needed for the Qube Executive Team.

The stunning new entry lounge for ISO’s new Qube owners, with boardroom behind reeded glass sliders for privacy..

 

Our developed design sketch perspective looking through to the boardroom from the entry.

 

The new entry lounge waiting area looking through to the work area beyond..

and the new boardroom with feature acoustic ceiling + stunning views out over the Port.

 
 

The CEO’s corner office with meeting setting…

and the COO’s office looking out over the Port.

 

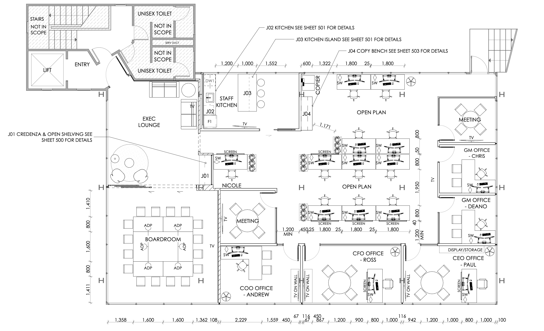
When it came to the layout, I don’t usually like positioning office around the perimeter of a workspace…

But given this was an Executive Suite for the Management Team, they were not giving up their views out over the port. So we made sure the open plan area still had access to perimeter glazing at the back of the building, and all the enclosed offices had glazed fronts, to allow additional natural light into the open plan area from the rest of the perimeter.

 
 
 
 
 
 

Then the new staff kitchen with built-in banquette at one end for informal meetings and to take phone calls.

 
 
 

BUBBLE INTERIORS’ SCOPE:

  • Briefing

  • Space Planning, Concept + Developed Design

  • All finishes selections

  • Detailing of custom wall cladding, credenzas + kitchen

  • Documentation for Pricing + Construction

  • Co-ordination of Tender Process + appointment of Contractor

  • Procurement of full new FF&E Package

  • “Soft” Project Management

 
 
 

PROJECT TEAM + SUPPLIERS:

  • Main Contractor: Alaska

  • Flooring: DyeLab by Jacobsens/Shaw Contract

  • Feature Lighting: Mr Ralph

  • Furniture: Tim Webber, Harrows, ISSA, Chair Solutions, Mobel Group

  • Photography: Amanda Aitken Photography

Project Completed September 2022

 
 

See more Case Studies:

Harcourts Opotiki | Ray White Papamoa


 


Are you needing to refurbish or relocate your office premises?

Bubble Co can help you manage the planning, design + delivery of your project…

Get in touch! and let’s talk through where you’re at, and what your best next steps are.

 

© 2026 Metamorphose Group Ltd